エムズハウスの
家づくりの想い
間取りや費用の、参考に。
エムズハウスの注文住宅のプラン一例を、
間取りと価格とともにご紹介。
お客様の想いを詰め込んだ理想の住宅をつくります。
実際の家づくりにかかる費用や、建てたあとの暮らし方のイメージのためにぜひ参考にしてください。


Plan01
詳細はこちら
回遊動線で整うホテルライクな住まい

Plan02
詳細はこちら
暮らしに余白をつくる、和室+趣味空間のある家

Plan03
詳細はこちら
ゆとりは諦めない。親世帯と暮らすための回遊動線の家

Plan04
詳細はこちら
ひとりでも、ふたりでも心地いい。小さな平屋の暮らし

Plan05
詳細はこちら
猫と子育て家族のための回遊動線の家

Plan06
詳細はこちら
最初から、全部つくらない。 家族と一緒に育つ住まい

Plan07
詳細はこちら
距離感が心地よい、平屋の二世帯住宅

Plan08
詳細はこちら
1.5階建てのセミ二世帯住宅

Plan09
詳細はこちら
気兼ねなく暮らせる、完全分離二世帯住宅

Plan10
詳細はこちら
夫婦ふたり、心地よい暮らしを育む終の棲家

Plan11
詳細はこちら
抜け感とテラスで家族時間を楽しむ寄棟の家

Plan12
詳細はこちら
狭小間口に光と駐車場を叶えた家

Plan13
詳細はこちら
20坪台で叶える、開放感と暮らしやすさ

Plan14
詳細はこちら
家族の“好き”を楽しむ、ガレージ付き平屋 ― アウトドアも、くつろぎも、暮らしのすべてがここに。

Plan15
詳細はこちら
「かっこいい」に、暮らしやすさを。 ― 共働き家族のための、洗練された平屋 ―

Plan16
詳細はこちら
ひそかに人気の1.5階建て“平屋+One”の賢い選択

Plan17
詳細はこちら
風と光を感じる、大人のためのセカンドライフ住宅

Plan18
詳細はこちら
静かな時間が流れる、庭と繋がる平屋のくらし

Plan19
詳細はこちら
ペットと一緒に幸せに暮らす家

Plan20
詳細はこちら
30代子育て家族にちょうどいいスキップフロアの家

Plan21
詳細はこちら
3LDK 家事楽の平屋 ガレージ付🚗

Plan22
詳細はこちら
二人暮らしのための平屋

Plan23
詳細はこちら
半平屋で開放感が魅力のお家

Plan24
詳細はこちら
キッチンが主役のお家

Plan25
詳細はこちら
収納と動線が充実したお家

Plan26
詳細はこちら
ぐるぐる動線で人気のプランのお家

Plan27
詳細はこちら
ワンフロアで使いやすい平屋のお家

PlanA01
詳細はこちら
ぎゅっと心地いい、ミニマルなお家

PlanA02
詳細はこちら
ちょうどよく暮らせる、バランスのいいお家

PlanA03
詳細はこちら
ゆとりを楽しむ、ゆったり平屋のお家

PlanB01
詳細はこちら
平屋+αでちょうどいい、広がりを感じるお家

PlanB02
詳細はこちら
ゆとりと使いやすさを両立した、賢いお家

PlanB03
詳細はこちら
暮らしの幅が広がる、余白を楽しむお家

PlanC01
詳細はこちら
無駄なく暮らせる、効率重視のお家

PlanC02
詳細はこちら
変化にフィットする、ちょうどいいお家

PlanC03
詳細はこちら
忙しい毎日をラクにする、回遊動線のお家



Plan01
家の中をぐるっと回れる回遊動線で、家事も育児もスムーズに。 LDKを中心にした間取りは、家族の気配を感じながらも、それぞれの時間を大切にできます。 小上がり洋室や将来を見据えた部屋数計画で、ライフステージの変化にも対応。 デザインはホテルライクにまとめ、毎日帰りたくなる落ち着いた空間に仕上げました。


A
B
その他費用※諸費用はお客様によって異なりますので
詳しくはお問い合わせください。
A+B



Plan02
リビング横の和室と、各所に配置した充実の収納が魅力の2階建てプラン。 パントリーやキッチンまわりの収納をしっかり確保し、料理好きの方にも使いやすい間取りです。1階で生活がほぼ完結しつつ、2階には趣味や個の時間を楽しめる空間を確保。広さも収納も、どちらも妥協したくないご家族におすすめのお家です。


A
B
その他費用※諸費用はお客様によって異なりますので
詳しくはお問い合わせください。
A+B



Plan03
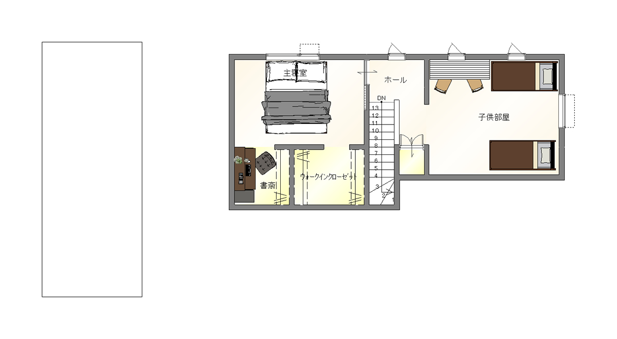
家族人数が多いご家庭や、親御さんとの同居を想定した5LDK・34.75坪のゆとりあるプランです。 個室をしっかり確保しながら、生活の中心となるLDKは家族が自然と集まれる配置に。 浴室は 1.25坪タイプ、トイレも将来を見据えてゆとりを持たせた設計としました。 回遊動線を取り入れることで、毎日の家事や移動もスムーズに。 「今も、これからも暮らしやすい」を考えた住まいです。


A
B
その他費用※諸費用はお客様によって異なりますので
詳しくはお問い合わせください。
A+B



Plan04
子どもが巣立ち、これからは夫婦ふたり、またはひとりで静かに暮らしたい。 広さよりも、安心と暮らしやすさを大切にしたコンパクトな平屋プランを考えました。 建坪は18.5坪。無駄な廊下や間仕切りをできるだけなくし、必要な場所に、必要な広さだけを確保しています。 コンパクトでも、キッチン・洗面・家事室は普段の暮らしと同じ使いやすさ。 「小さいから不便」にはしません。

A
B
その他費用※諸費用はお客様によって異なりますので
詳しくはお問い合わせください。
A+B



Plan05
子育て中でも、猫との暮らしは大切にしたい。 家事も育児も忙しい毎日だからこそ、人も猫もストレスなく動ける家を考えました。 玄関からのただいま動線・水回り一直線のスムーズな動線・パントリーからキッチンへとつながる家事ラク動線。 階段下のネコスペース。どこへ行くにも遠回りがなく、家族も猫も、自然とぐるぐる回れる間取りです。


A
B
その他費用※諸費用はお客様によって異なりますので
詳しくはお問い合わせください。
A+B



Plan06
できるだけコストは抑えたい。 でも、建売ではなく、自分たちらしい注文住宅にしたい。 そんな30代ご夫婦のために考えたのが、 「住みながら完成していく家」です。 大屋根をかけた1.5階建ての住まい。 屋根裏を上手に活かした2階は、あえて最初から間仕切りをしません。 今は、子どもたちが小さくて一人一部屋は必要ない。 それなら、今使わないものにお金をかけないという選択を。 これは「削った間取り」ではありません。 将来を見据えて、あえて後回しにした間取りです。


A
B
その他費用※諸費用はお客様によって異なりますので
詳しくはお問い合わせください。
A+B

Plan07
家事動線がスムーズで、親世帯・子世帯(4人)どちらも快適に過ごせます。 生活をほどよく分けながら支え合える、平屋でもちょうどいい距離感が叶う住まいです。

A
B
その他費用※諸費用はお客様によって異なりますので
詳しくはお問い合わせください。
A+B

Plan08
親世帯は1階だけで生活が完結する安心の動線設計。子世帯の寝室は2階に分けて、お互いに気兼ねなく暮らせる、ほどよい距離感のセミ二世帯の住まいです。


A
B
その他費用※諸費用はお客様によって異なりますので
詳しくはお問い合わせください。
A+B

Plan09
親世帯・子世帯それぞれの玄関を備えたフル二世帯住宅。気兼ねなく過ごせる独立性と、すぐそばに家族がいる安心感を両立した2階建ての住まいです。


A
B
その他費用※諸費用はお客様によって異なりますので
詳しくはお問い合わせください。
A+B



Plan10
歳を重ねても心地よく過ごせる、広がりのあるリビングが中心の住まい。 勾配天井が生み出すゆとりと、平屋ならではの暮らしやすさを両立しました。

A
B
その他費用※諸費用はお客様によって異なりますので
詳しくはお問い合わせください。
A+B



Plan11
40代ご家族4人の暮らしを想定した、ゆとりある住まい。 南面に設けた大きな吹き抜けから光がたっぷり降り注ぎ、リビングはいつでも明るく開放的。LDKから直接出られるテラスは、食事やお子様との遊び場として多彩に活用できます。寄棟屋根ならではの安定感あるデザインに、家族のつながりを感じられるプランを組み合わせた、暮らしを楽しむ住まいです。


A
B
その他費用※諸費用はお客様によって異なりますので
詳しくはお問い合わせください。
A+B



Plan12
間口が限られた敷地でも、南側からしっかり採光を取り込み、明るく開放的な住まいを実現しました。縦に広がる土地形状を活かし、無駄のない動線とゆとりある居住空間を両立。リビングは自然光に包まれ、家族の時間を心地よく過ごせます。さらに、狭小間口ながらも駐車スペースをしっかり確保し、日常生活の利便性にも配慮しました。


A
B
その他費用※諸費用はお客様によって異なりますので
詳しくはお問い合わせください。
A+B



Plan13
ホワイトを基調にした片流れ屋根の外観が、上品で清潔感あふれる平屋プランです。 20.75坪のコンパクトな間取りながら、LDKは勾配天井で広々とした開放感を実現。 家事動線が短く、生活がしやすい設計は、少人数のご家族やセカンドライフを楽しむご夫婦にぴったりです。 シンプルでおしゃれな住まいで、ゆとりある平屋暮らしを叶えませんか?

A
B
その他費用※諸費用はお客様によって異なりますので
詳しくはお問い合わせください。
A+B



Plan14
自然と外へ出たくなるような、のびやかなアウトドア空間を楽しめる平屋プラン。 ゆるやかに庭とつながるLDKは、家の中にいながら外の心地よさを感じられる開放感ある設計です。 屋根付きの土間ガレージは、雨の日も安心な駐車スペースであると同時に、収納・DIY・趣味空間としても大活躍。 家族の“好き”を思いきり楽しむための、自由時間のベースになります。 おうちキャンプ、BBQ、テント、家庭菜園…。 「外で楽しむ」が毎日の暮らしに溶け込む、アウトドア好きなご家族にぴったりな一棟です。 ※建物面積にガレージ分は含んでおりません

A
B
その他費用※諸費用はお客様によって異なりますので
詳しくはお問い合わせください。
A+B



Plan15
共働きの30代ご夫婦とお子さま2人の、今の暮らしにちょうどいい平屋プラン。 外観は、ブラックのガルバリウム鋼板×木質サイディングの組み合わせで、シャープかつ温かみのある印象に。 スタイリッシュな中にも、家族らしい優しさと落ち着きを感じられるデザインです。 また、南側には大開口のサッシを採用し、明るさと開放感もたっぷり。 自然の光と風を感じながら、心地よく過ごせる毎日を実現します。 効率的な家事動線や、家族のつながりを大切にした間取り構成で、忙しい日々もスマートに、楽しく暮らせる一棟です。

A
B
その他費用※諸費用はお客様によって異なりますので
詳しくはお問い合わせください。
A+B



Plan16
平屋ベースに、もう少しだけのゆとりを。 38歳ご夫婦と小学生のお子さま2人にぴったりな、暮らしやすさと楽しさを兼ね備えた【平屋+One】の住まいです。 1階で生活が完結する安心感に加え、2階には屋根裏部屋風の“+α空間”をプラス。 将来はワンフロアで、今は家族で自由に使える、ちょうどいい暮らしが叶います。



A
B
その他費用※諸費用はお客様によって異なりますので
詳しくはお問い合わせください。
A+B



Plan17
大きな窓からつながるテラスは、まるでもうひとつのリビング。 光と風を感じながら、夫婦ふたりの“ちょうどいい距離感”で過ごす、ゆとりある暮らしが始まります。 室内はシンプルながらも上質で、無駄のない動線が毎日を心地よく支えます。 晴れた日にはテラスでブランチを。夜には静かに星を眺めて過ごす時間も。 そんな、日常の中に小さな幸せを感じられる、これからのための住まいです。

A
B
その他費用※諸費用はお客様によって異なりますので
詳しくはお問い合わせください。
A+B



Plan18
子育てを終え、これからは自分たちのために暮らしを楽しむ—— そんなご夫婦にぴったりの、平屋+広縁の住まいです。 広縁から見える季節のうつろい、心地よい風、朝の光。 日々の中に自然を感じながら、無理のない動線とコンパクトで快適な間取りが、心も身体もゆったりとさせてくれます。 広縁は来客にも使え、お孫さんの遊び場としても活躍。 日常を丁寧に暮らしながら、時には広縁でコーヒーを片手に、静かに語らう時間も。 “これからの暮らし”を、もっと自由に、もっと豊かに楽しめる住まいです。

A
B
その他費用※諸費用はお客様によって異なりますので
詳しくはお問い合わせください。
A+B



Plan19
ネコも犬も、私たちにとって大切な家族の一員。 この31.74坪のお家は、人もペットも快適に暮らせる工夫をたっぷり詰め込みました。 リビングには、猫が自由に上り下りできるキャットウォークを設置。 階段下スペースは犬や猫のトイレ専用スペースとして活用し、生活空間はいつもすっきり。 ペットと暮らすための安全性と快適さを考えた設計で、家族全員が笑顔になれる住まいです。


A
B
その他費用※諸費用はお客様によって異なりますので
詳しくはお問い合わせください。
A+B


Plan20
家族とのつながりを感じながら、空間を立体的に楽しめるスキップフロアのある3LDKのお家です。 中2階のフリースペースは、お子さまの遊び場やスタディコーナー、ワークスペースなど多目的に活用可能。 視線が抜ける開放的な設計で、どこにいても家族の気配を感じられます。 たっぷりの収納と効率的な家事動線で、毎日の暮らしも快適に。 30代子育て家族に“ちょうどいい”サイズと機能を備えた住まいです。


A
B
その他費用※諸費用はお客様によって異なりますので
詳しくはお問い合わせください。
A+B



Plan21
3LDK+和室スペースのある平屋 洗面+家事室で、家事を楽するアイテム ガレージ付きで、雨でも雪でも、濡れずにお家に入れますよ

A
B
その他費用※諸費用はお客様によって異なりますので
詳しくはお問い合わせください。
A+B



Plan22
2LDKの平屋 2人でゆったりとワンフロアで暮らすお家

A
B
その他費用※諸費用はお客様によって異なりますので
詳しくはお問い合わせください。
A+B



Plan23
吹抜と高窓で明るい開放的な空間の半平屋 家族のプライベートも確保しながら、 家族を近くに感じられるプランです! 洗面・家事室・ファミクロの流れが 家事効率をUP!


A
B
その他費用※諸費用はお客様によって異なりますので
詳しくはお問い合わせください。
A+B



Plan24
コンパクトでも、3LDKで必要な部屋は確保。 1階はキッチンを中心に、家族が和み過ごせるプランです。


A
B
その他費用※諸費用はお客様によって異なりますので
詳しくはお問い合わせください。
A+B



Plan25
各所の収納が充実して、それに合った動線づくりも動きやすさの秘訣。 可変可能な子供部屋も魅力の一つ。


A
B
その他費用※諸費用はお客様によって異なりますので
詳しくはお問い合わせください。
A+B



Plan26
玄関からシューズクローク、パントリーへの動線は人気の秘密。 横並びのキッチンも、使いやすさ抜群。リビング横の和室もポイントです。


A
B
その他費用※諸費用はお客様によって異なりますので
詳しくはお問い合わせください。
A+B



Plan27
28坪で、3部屋と和室、書斎と必要な場所は確保。洗面と並びで、家事室、そしてクローゼットと流れる動線で使いやすさも追求しました。 キッチン脇には、パントリーもあり収納にも困りません。平屋でも、充実したプランが出来ました。

A
B
その他費用※諸費用はお客様によって異なりますので
詳しくはお問い合わせください。
A+B


PlanA01
必要なものだけをコンパクトにまとめた、無駄のない住まい。 短い動線で家事もスムーズにこなし、日々の暮らしが自然と整います。 シンプルだからこそ、心地いい、ミニマルライフを叶える平屋です。

A
B
その他費用※諸費用はお客様によって異なりますので
詳しくはお問い合わせください。
A+B


PlanA02
コンパクトさと快適さを両立した、人気のバランス設計。 無駄を省きながらも必要な空間はしっかり確保し、家事動線も効率的で、毎日をストレスなく過ごせます。 土地(固定...760万) / 総合価格...2,699万円 / 月々の支払い...6.7万

A
B
その他費用※諸費用はお客様によって異なりますので
詳しくはお問い合わせください。
A+B


PlanA03
家族みんながのびのび過ごせる、安心感のある広さ。 家事動線や収納計画にもこだわり、暮しやすさをさらに向上。 将来の変化にも対応できる、余裕ある平屋です。

A
B
その他費用※諸費用はお客様によって異なりますので
詳しくはお問い合わせください。
A+B


PlanB01
平屋の暮らしやすさに、もう少しの空間をプラス。 生活の中心は1階にまとめつつ、+αの空間が暮らしに余裕を生みます。 コンパクトすぎず、広すぎないちょうどいい贅沢を叶える住まいです。


A
B
その他費用※諸費用はお客様によって異なりますので
詳しくはお問い合わせください。
A+B


PlanB02
空間にゆとりを持たせながらも、無駄のない設計。収納やフリースペースも確保しやすく、 家族それぞれの時間を大切にできます。暮らしやすさと自由度をバランスよく備えた一棟です。


A
B
その他費用※諸費用はお客様によって異なりますので
詳しくはお問い合わせください。
A+B


PlanB03
ゆとりある広さで、趣味や在宅ワークなど多様な使い方が可能。 家族のライフスタイルに合わせて柔軟に使える空間設計で毎日の暮らしに+αの豊かさをもたらします。


A
B
その他費用※諸費用はお客様によって異なりますので
詳しくはお問い合わせください。
A+B


PlanC01
コンパクトながらも機能性をしっかり確保した 2階建て。 動線計画にこだわり、日々の家事や生活を効率よくサポートします。 コストと暮らしやすさを両立した、賢い選択です。


A
B
その他費用※諸費用はお客様によって異なりますので
詳しくはお問い合わせください。
A+B


PlanC02
家族構成やライフスタイルの変化に柔軟に対応できる設計。 子どもの成長や働き方の変化にも寄り添い、長く安心して暮らせるちょうどいい 2階建てです。


A
B
その他費用※諸費用はお客様によって異なりますので
詳しくはお問い合わせください。
A+B


PlanC03
子育て中の「バタバタ」をラクにする、回遊動線の住まい。 3LDK+和室のちょうどいい広さに暮らしやすさを詰め込み、忙しい毎日でも家族との時間を大切にできるお家です。


A
B
その他費用※諸費用はお客様によって異なりますので
詳しくはお問い合わせください。
A+B